Фахверк 190 №719

Цена строительства от 9 050 000 ₽* * Стоимость не является окончательной
Заявка на консультацию
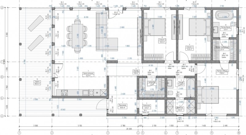
  • Общая площадь 181 м2
  • Длина 20.2 м
  • Ширина 10 м
  • Материал стен Каркас
  • Количество этажей 1
  • Подвал Нет
  • Мансарда без мансарды
  • Гараж Нет
  • Терраса Да
  • Проживание Круглогодичное
  • Количество комнат 5
  • Количество спален 4
  • Количество санузлов 2
  • Вид проекта дом
  • Застройщик STRUKTURA
  • Архитектурный стиль Скандинавский
  • Отделка фасада Вагонка
  • Крыша Двускатная
  • Можно купить домокомплект Нет
  • Модульный тип строения Нет
Планировки
Описание проекта
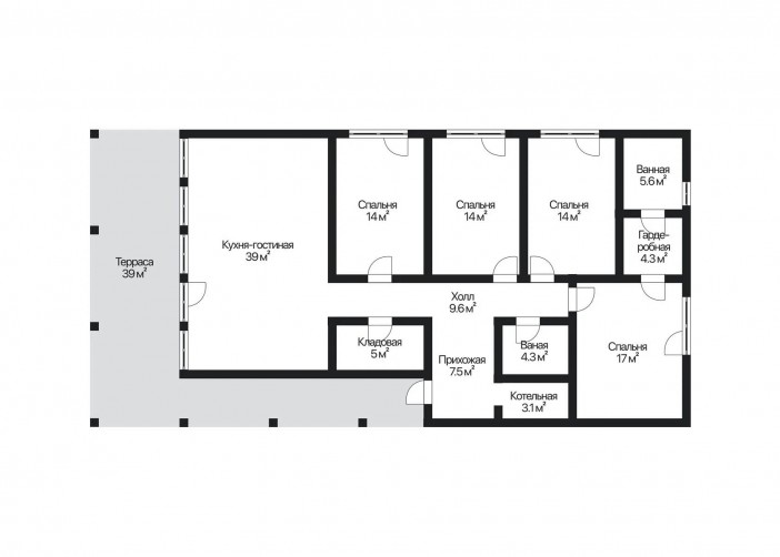
  • Прихожая 9.10
  • Прихожая 4. 31
  • Котельная 3.13
  • Прачечная 3.43
  • Ванная 4.7
  • Коридор 9.58
  • Кухня-гостиная 53.31
  • Спальня № 1 14.04
  • Спальня № 2 14.04
  • Мастер-спальня 17.08
  • Мастер-гардеробная 4.29
  • Мастер-ванная 5.61
  • Терраса 38.02


Тёплый контур + коммуникации 9 050 000

С пред чистовой отделкой 10 900 000

С чистовой отделкой 12 600 000


Комплектация теплый контур:

Все коммуникации в доме будут присутствовать:

  •  Тёплые полы
  •  Бетонная стяжка
  •  Мокрые точки кухне, санузлах
  •  Электричество полностью разведено во всем доме в подрозетники
  •  Внутренние коммуникации для подключения газового котла
  •  Водоотведение в септик 6,3 куб.

Практически готовый дом

В доме уже есть всё, кроме фасада и гипса — далее можно завершить отделку в любое время года.

Возможность построить дом бóльшей площадью в сравнении с домом с пред чистовой отделкой за ту же стоимость.

Строительство 2–3 месяца

Быстрый срок возведения дома с коммуникациями.


Дом с готовыми инженерными системами «под ключ». Вам останется только выполнить чистовую отделку!

Мы позаботились о самом главном, чтобы ваше новоселье было по-настоящему комфортным. В стоимость дома уже входит полный комплект современных и надежных инженерных систем:

· ✅ Канализация: Вы получаете готовую систему сточных вод на 6.3 м³, что гарантирует эффективное использование для всей семьи.

· ✅ Эффективная система отопления:

  · Теплый пол повсюду: Равномерное и комфортное тепло по всему дому обеспечивают водяные теплые полы, встроенные в стяжку.

  · Надежный источник тепла: Установлен мощный Электра котёл на 16 кВт.

  · Забота о будущем: Заранее подведены все коммуникации для легкого перехода на газовое отопление при возможности.

· ✅ Полностью готовая электрика:

  · Электрощит установлен, вся проводка разведена и выведены подрозетники для будущих розеток и выключателей.

  · Для вашей кухни уже проложен отдельный силовой кабель для мощной плиты или духового шкафа.

· ✅ Комфортный микроклимат: В санузлах смонтированы вытяжки для поддержания оптимальной влажности.

· ✅ Готовые подключения для сантехники: Все трубы холодного и горячего водоснабжения, а также канализации подведены к местам установки сантехники на кухне и в санузлах.

Заселяйтесь и наслаждайтесь жизнью без лишних хлопот!

Выбор местоположения

Задать вопрос / написать нам

E-mail: domgis@mail.ru

Мы свяжемся с Вами в течение дня.

Тех. поддержка
Предмет обращения:
Тукущая страница

Мы свяжемся с Вами в течение дня.

Уведомление
Предмет обращения:
Тукущая страница
Обратный звонок
Обратный звонок
Выберите ваш город
Пожаловаться

Объявление опубликовано.
Изменения сохранены

Период публикации - бессрочный, при условии подтверждения актуальности каждые 50 дней. Уведомления будут отправляться на Вашу электронную почту.

Выберите причину снятия с публикации

Снятые с публикации объявления не участвуют в поиске и недоступны для подробного просмотра.

Для повторной публикации нажмите «Вернуть в публикацию»