Первомайка №243

Цена строительства от 7 225 000 ₽* * Стоимость не является окончательной
Заявка на консультацию
  • Общая площадь 95 м2
  • Длина 10.34 м
  • Ширина 13.12 м
  • Материал стен Профилированный брус
  • Количество этажей 2
  • Подвал Имеется
  • Мансарда без мансарды
  • Гараж Нет
  • Терраса Нет
  • Проживание Круглогодичное
  • Количество комнат 5
  • Количество спален 4
  • Количество санузлов 3
  • Вид проекта дом
  • Застройщик Сорокин & Угренинов
  • Отделка фасада Лицевой кирпич
  • Можно купить домокомплект Да
  • Модульный тип строения Нет
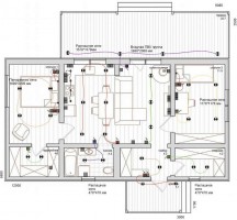
Планировки
Описание проекта

Индивидуальный проект жилого дома с большим подвалом, первый этаж из кирпича или аналоги, типа сибит или пенобетон, и второй этаж из лафета сечением 250х400мм. Общая площадь дома 471м2 с подвалом и первым этажом, площадь дервянного второго этажа 95м2, размер сруба 9,3х13,1м. Мы не просчитывали весь объем строительства дома, а учитывали только лафетный сруб второго этажа.

Отделка сруба. Шлифовка, покраска, все отделочные работы нужно согласовывать индивидуально, они могут быть очень разными, от простого до-премиум или класса люкс. Мы выполняем все виды работ, включая инженерные коммуникации, электрику и сантехнику. Скрытые коммуникации тоже нужно обсуждать, они могут быть в стенах, полах, потолках, дверных проемах. Архитектурный рабочий проект сруба не предполагает инженерные коммуникации, он дает нам только стеновой комплект, планы фундамента с рекомендациями (геодезию нужно делать по факту), все перекрытия, стропильная система и кровля, локальная смета материалов необходимых для всех деревяных конструкций, кроме лестницы (она разрабатывается отдельно. Поэтому, проекты на электрику, сантехнику (водоснабжение и канализация), вентиляцию, необходимо делать дополнительно.

Возможно изменить технологию рубки сруба, наши мастера владеют всеми видами плотницких инструментов и соединений. Канадская рубка, Норвежская рубка, Post&Beam, все виды русских чашек и углов, (охлоп, обло, курдюк, седло, лапа), а так, же совмещенная технология, внутренние стены в виде лафета, а снаружи бревно. Выполняем все виды работ плотницких и столярных по всей России и за ее пределами. 

Обращаем Ваше внимание на то, что стоимость работ и материалов значительно подорожала за последние годы, многие работы были выполненные очень давно и конечно же дешевле. Например, в 2009 году мы строили срубы из кедра по цене 9000 рублей за м3, сегодня это уже 30000 рублей, и это минимум. Конечно, за это время и качество работы стало намного выше, но и сырье стало трудно-доступнее и дороже, ГСМ, налоги, дороги, высокий спрос на наше сырье со стороны иностранцев, внутренний рынок после пандемии тоже вырос, и государство ужесточает требования и условия лесопользования. Есть экспертная оценка всемирной организации, что наши лесные ресурсы недооценены в три раза. И все эти факторы в совокупности дают рост на древесину, и ее дефицит на внутреннем рынке. И надо понимать, дешевле уже никогда не будет!

Ждем Вас на нашей строительной площадке, в офисе, всегда рады поговорить, показать, и поделиться опытом. Наши мастера круглый год работают в разных городах и странах, от Сахалина до Калининграда, от Казахстана до Магадана, всегда можно приехать туда, где Вам поближе и посмотреть качество работы. Пишите и звоните, и всего вам доброго!

Вас может заинтересовать
Вас может заинтересовать

Выбор местоположения

Задать вопрос / написать нам

E-mail: domgis@mail.ru

Мы свяжемся с Вами в течение дня.

Тех. поддержка
Предмет обращения:
Тукущая страница

Мы свяжемся с Вами в течение дня.

Обратный звонок
Обратный звонок
Выберите ваш город
Пожаловаться

Объявление опубликовано.
Изменения сохранены

Период публикации - бессрочный, при условии подтверждения актуальности каждые 50 дней. Уведомления будут отправляться на Вашу электронную почту.

Выберите причину снятия с публикации

Снятые с публикации объявления не участвуют в поиске и недоступны для подробного просмотра.

Для повторной публикации нажмите «Вернуть в публикацию»