Фахферх №594

Цена строительства от 20 620 000 ₽* * Стоимость не является окончательной
Заявка на консультацию
  • Общая площадь 167 м2
  • Длина 10.5 м
  • Ширина 11.6 м
  • Материал стен Газобетон/пеноблок
  • Количество этажей 2
  • Подвал Нет
  • Мансарда без мансарды
  • Гараж Нет
  • Терраса Да
  • Проживание Круглогодичное
  • Количество комнат 5
  • Количество спален 4
  • Количество санузлов 2
  • Вид проекта дом
  • Застройщик DMGroup
  • Архитектурный стиль Барнхаус
  • Отделка фасада Комбинированная
  • Крыша Двускатная
  • Можно купить домокомплект Нет
  • Модульный тип строения Нет
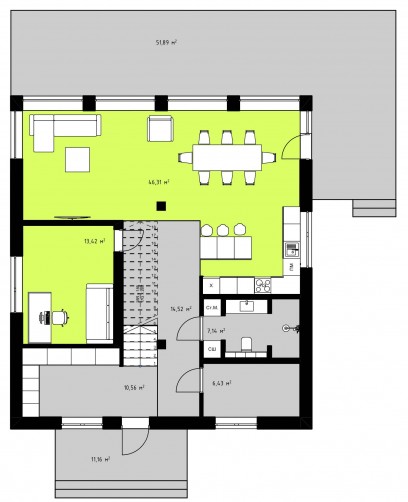
Планировки
Описание проекта

Дом сдается в отделке white box. Гипсовая штукатурка Knauf под обои. 

Характеристики: 

Дом: 167,4м2 (полезная площадь, без террасы и крыльца),

●  Потолки 2,85 -5,7м2;

●  4 спальни 

●  Кухня-столовая 40,31м2;

●  2 санузла;

●  Котельная 6,43м2;


Комплектация дома:

Фундамент: Ребристая плита;

Материал наружных стен: Автоклавный газобетон (Сибит) 300мм + утеплитель 100мм. Далее выполнена штукатура; 

Внутренние несущие стены: Автоклавный газобетон (Сибит) 300мм.  

Перекрытия: Монолитные; 

Кровля: Стропильная система обработана антисептиком. Профлист 0,45 мм. Утепление 200 мм;

- Дверь входная: Тëплый алюминий с терморазрывом и тонированным стеклом;

-Окна: Энергоэффективный 5ти камерный профиль Veka, c замкнутым армированием, стеклопакет 40 мм. Фурнитура Winkhaus;

- Электромонтаж: Провода использованы ГОСТ ВВГнг LS. Все магистрали в гофре, на каждую комнату установлен отдельный дифференциальный автомат. Заземление. 

 В Щите есть реле контроля напряжения, которое защитит бытовую технику от нежелательных перепадов напряжения;

- Отопление: Тёплые полы выполнены с шагом 15 см в каждой комнате отдельный контур, что позволяет регулировать температуру в каждом помещении по разному. Электрический котел и бак теплообменника выполнен из нержавеющей стали, так же как и тэны. Разводка умного отопления;

- Водопровод Выполнен по технологии Axiopress с использованием трубы и фитингов PEXa. Реализована циркуляция горячей воды, что позволяет практически сразу пользоваться горячей водой. Вся система перед заливкой отпрессована давлением 8 бар;

- Вентиляция: Естественная;

- Канализация: Переливной септик V=7,5м3;

- Пол: Стяжка; Септик.

Выбор местоположения

Задать вопрос / написать нам

E-mail: domgis@mail.ru

Мы свяжемся с Вами в течение дня.

Тех. поддержка
Предмет обращения:
Тукущая страница

Мы свяжемся с Вами в течение дня.

Обратный звонок
Обратный звонок
Выберите ваш город
Пожаловаться

Объявление опубликовано.
Изменения сохранены

Период публикации - бессрочный, при условии подтверждения актуальности каждые 50 дней. Уведомления будут отправляться на Вашу электронную почту.

Выберите причину снятия с публикации

Снятые с публикации объявления не участвуют в поиске и недоступны для подробного просмотра.

Для повторной публикации нажмите «Вернуть в публикацию»